Članak

PROJEKTI

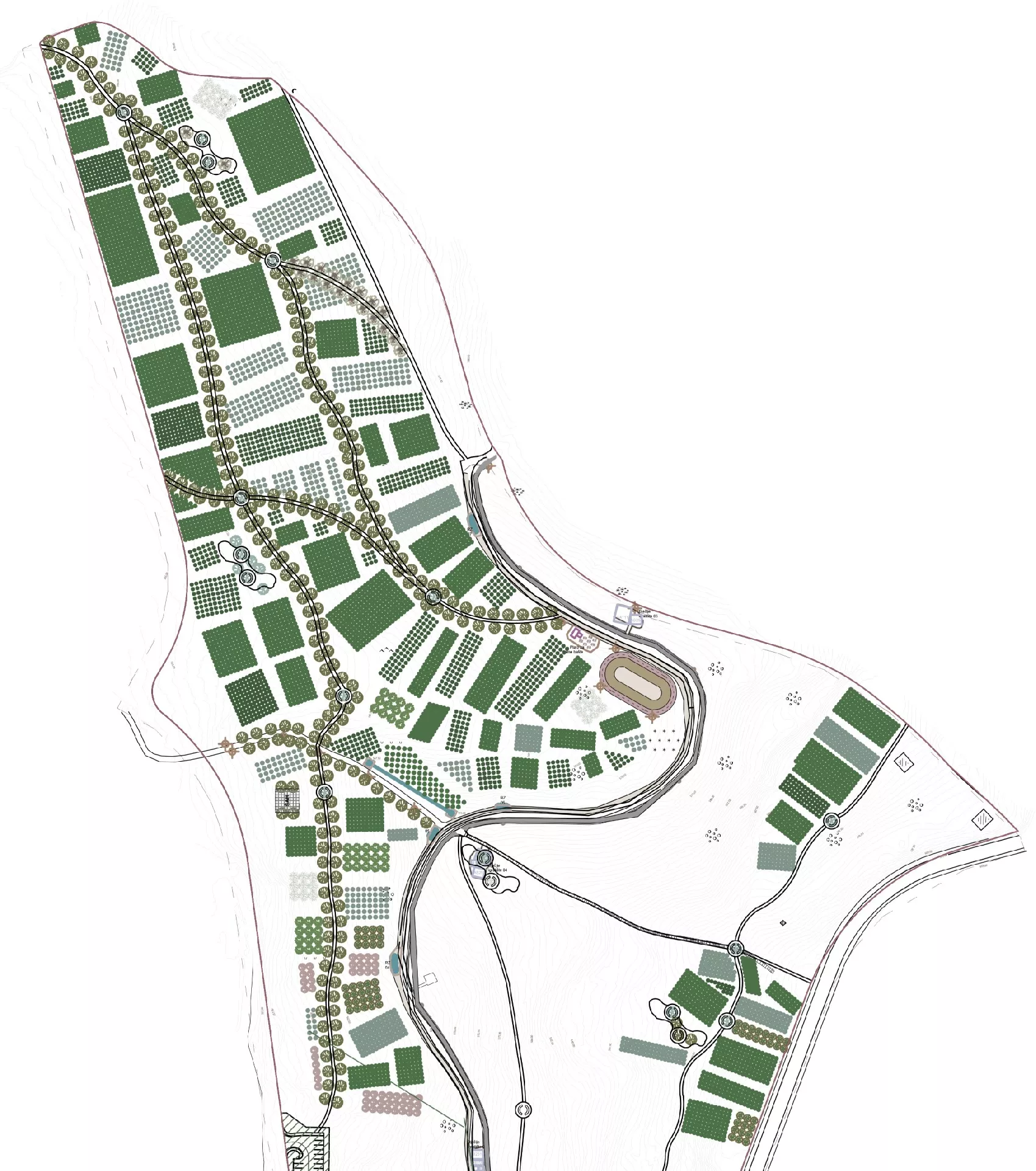
Na lokalitetu Jezero-Betanija bit će zasađena 8.372 stabla u znak sjećanja na žrtve genocida u Srebrenici

(Patria) - Premijer Kantona Sarajevo Nihad Uk, načelnik Općine Centar Srđan Mandić, direktorica Zavoda za izgradnju KS Belma Barlov, direktor KJKP "Park" Adis Bešlić, te direktor KJP „Sarajevo-šume" Samir Omerović potpisali su danas Sporazum o realizaciji Projekta "8.372 života: Memorijalna šuma sjećanja".

Ovaj projekt obuhvata sadnju 8.372 stabla u znak sjećanja na nevine žrtve povodom obilježavanja 30. godišnjice genocida u Srebrenici, a obuhvatit će lokalitet parka Jezero-Betanija u Sarajevu.

Obaveze Vlade u ovom projektu su osigurati finansijska sredstva posredstvom Ministarstva komunalne privrede, infrastrukture, prostornog uređenja, građenja i zaštite okoliša KS, te Ministarstva privrede, delegirati koordinatora Tima za realizaciju Projekta, posredstvom Kabineta premijera osigurati projektni nadzor nad zakonskim aktima, te koordinirati aktivnosti.

Premijer Uk danas je izrazio zahvalnost institucijama koje su uključene u ovaj projekt. Kako je naveo, aktivnosti na realizaciji su već počele, te je u toku priprema terena, a uskoro slijedi i početak sadnje. Učesnike je zamolio za potpunu efikasnost, kako bi sadnja bila okončana kako je i predviđeno.

Načelnik Mandić i ostali učesnici izrazili su zahvalnost što mogu biti dio projekta.

Ovaj sporazum realiziran je na osnovu Zaključka Vlade KS, a u vezi sa Zakonom o posebnim programima KS za memorijalizaciju genocida, podršku povratku i razvoju Srebrenice, pomoći žrtvama i porodicama žrtava genocida nad Bošnjacima zaštićene zone UN "Srebrenica" Sarajevo i Uredbom o uređivanju i održavanju zelenih i rekreativnih površina u KS.

#genocid #BiH #Sarajevo #Srebrenica #šuma #Betanija #stabla